VICTORIA ZHAROVINA
Наши проекты
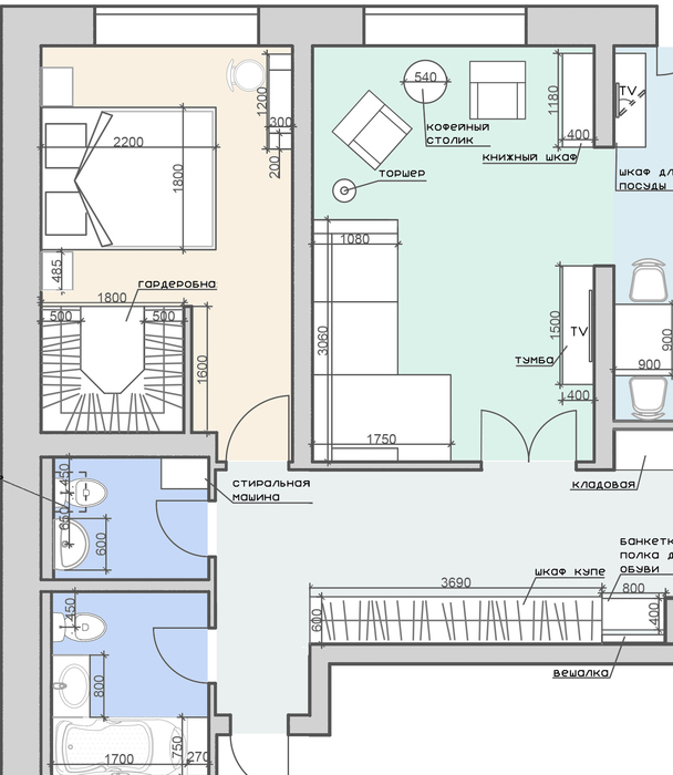
Работу над проектом вели дистанционно.Необходимо было поменять планировочное решение так, чтобы выделить две изолированные комнаты: спальню и гостевую-кабинет и сделать общее пространство для кухни-гостиной.
Задачей этого проекта было создать изысканный роскошный классический интерьер, не усложняя и не утяжеляя пространство, а лишь подчеркивая внутреннюю геометрию дома. У заказчика уже был опыт работы с архитектором и дизайнером. Но после обсуждения и просмотра аналогов, решили отказаться от предыдущих наработок.
Интерьер напоминает что-то космическое, но имеющее земное происхождения. Заказчики молодая пара, которые хотели создать современное яркое пространство, в котором будем много разного света. Одним из первых пожеланий было сделать кальянную на балконе, хотя пространство казалось небольшим, всё таки удалось разместить в нем зону отдыха.
Проект квартиры - студии был сделан для двух амбициозных, энергичных братьев в стиле лофт.Интересный проект небольшого пространства, в котором удалось объединить, зону кухни, отделенной барной стойкой от основного помещения; зону столовой.

Инновация
Экономия
Реактивность
Точность
Персональность
Находчивость
Визуализация
Образование
Планировочное решение
-3 варианта
3D визуализация помещений
Комплект чертежей
-обмерный план -планировочное решение -план демонтажа
-план монтажа
-план напольных покрытий -план теплых полов
-план потолка
-план освещения
-план выключателей
-план розеток
-развертки стен
-ведомость материалов
Концепция проекта
-Анализ участка
-Определение ведущего стиля и задач
-Разработка проекта, с учетом пожеланий заказчика, места расположения, выбранного стиля, бюджета.
Состав альбома
-Схема генплана
-Планы типовых этажей
-Схема разреза
-Разработка фасадов
-3D визуализация
Пакет включает в себя:
- обмерный план
- 3 планировочных решения
- план демонтажа
- план монтажа
- обмерный план
- 3 планировочных решения
- 3D-визуализация
- подбор мебели и материалов
- обмерный план
- 3 планировочных решения
- 3D-визуализация
- комплект строительной документации
- подбор мебели и материалов
- эскизный проект до 1500 м2
- разработка фасадов












